BALATONCSICSÓN BALATONI PANORÁMÁS, SZÉP FEKVÉSŰ, KÖZMŰVESÍTETT, BEÉPÍTHETŐ KÜLTERÜLET ELADÓ
Balatoncsicsó Szent György-hegyen vált eladóvá ez a csodás balatoni panorámával rendelkező, szép természeti környezetben lévő, 5340 m2-es beépíthető külterület, amely jogerős építési engedéllyel rendelkezik (2021. június 30. óta)
A nemzeti park szomszédságában fekvő telek jó minőségű murvás úton közelíthető meg, amely a Dörgicsét Mencshellyel összekötő közúttól kb. 600 m hosszú, szintemelkedés nélküli, télen-nyáron jól járható. 
Közművek: vezetékes víz és áram bevezetésre került, csatorna nincs
A terület fém támrendszerrel ellátott, új telepítésű olaszrizling fajtájú szőlővel telepítve.
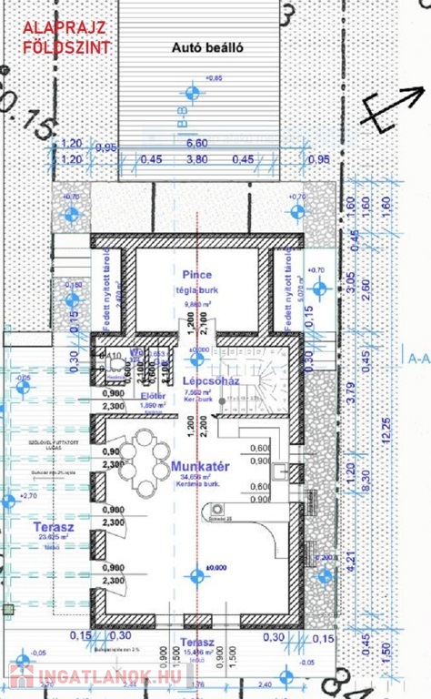
A tervezett gazdasági épület 146 m2 nettó alapterületű, háromszintes, pince + földszint + tetőtér kialakítású. 
Ha új tulajdonosa nem ezt szeretné megvalósítani, akkor a rendezési terv Mk2 borvidéki kertes övezetének szabályozása szerint építhető be:                                                                                             egy gazdasági épület és egy földdel borított boltpince helyezhető el
-	beépíthetőség legnagyobb mértéke 3% a 2700 m2-nél nagyobb telkek esetében, (max. 100 m2) szabadonálló beépítési móddal
-	max. építménymagasság 4 m
Hamarosan új építési szabályzat várható, amely a tervek szerint szigorítást tartalmaz, min. 5000 m2-es telek lesz csak beépíthető.
Tulajdoni lapon: külterület, szőlő 4905 m2, rét és rom 435 m2                                                                                                                                                             Adásvétele kifüggesztésköteles.
Elhelyezkedése: Balatonakali strand 8 km, Dörgicse és Mencshely központja 2 km távolságra érhető el
Építész- és ingatlanközvetítő irodánk minden hiteles szakmai segítséget meg tud adni, mellyel segíteni tudjuk döntését. 
                                                                                                                                    Kérje az ingatlan részletes tájékoztató anyagát! 
                                                                                                                                           Kövesse Balatoniingatlanguru facebook és balatoni_ingatlanguru instagram oldalunkat.  
                                                                                                                                                
                                                                                                                                           Balatoni ingatlanguru – több mint közvetítő                                                            
| Ár: | 43 000 000 Ft | 
| Méret: | 5 340 Négyzetméter | 
| Azonosító: | 11571726 | 
| Telek: | 5340 Négyzetméter | 
| Jelleg: | külterület | 
| Villany: | Telken belül |